La séquence 1 amorce une densification de la centralité de Petite-Synthe, un renouveau architectural permettant d’offrir de nouveaux logements à l’approche environnementale s’accordant avec le ressenti végétal du quartier et de la place. Cette urbanisation permet en outre une homogénéisation entre les architectures déjà présentes.
Le travail sur l’architecture est donc bien un travail sur l’épannelage et l’échelle des bâtiments qui doit faire sens dans le quartier.
L’architecture se veut comme un liant entre les entités architecturales existantes. Le paysage s’infiltre entre les bâtiments ménageant des perméabilités et participant à l’impression de nature recherchée en lien avec la place parc.
Les jardins, les balcons et terrasses végétalisées participent et devront participer à renforcer cette présence du végétal.
Petite-Synthe / Lots 1A et 1B, Dunkerque, 2014
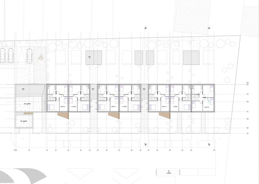
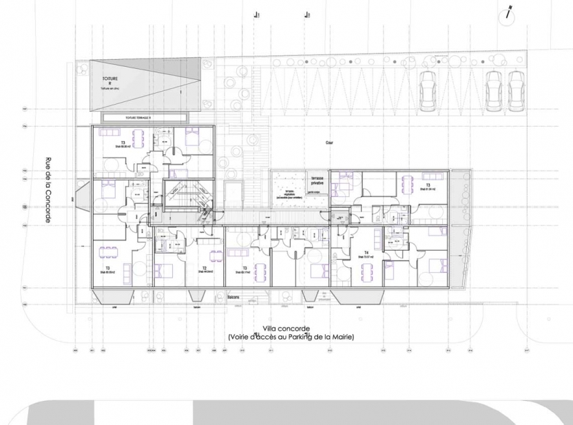
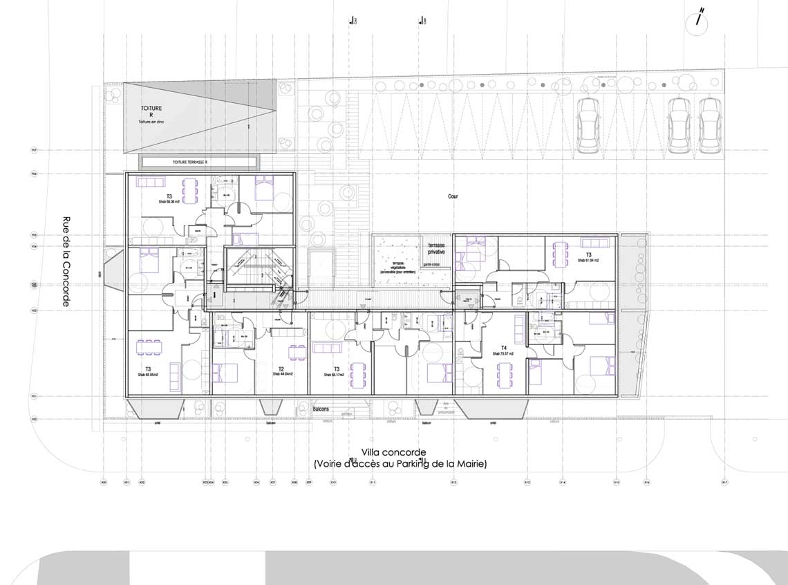
- PROGRAMME_Construction d’un immeuble de 21 logements collectifs et de 7 maisons individuelles accolées
- CONTEXTE_Petite-Synthe, Communauté Urbaine Dunkerquoise (59)
- SURFACE_2 900 m² shon
- COûT_3.2 M€ HT
- MAîTRISE D’OUVRAGE_Cottage Social des Flandres
- MAîTRISE D’OEUVRE_Agence Patrick Chavannes – AAUPC
- MISSION_Maîtrise d’oeuvre complète Loi MOP
- PHASE_Esquisse
- DATE_2012 à 2014
