La présence de voies ferrées à proximité des lots D et C2A au Nord Est a un fort impact sur la composition architecturale du projet. Dans le cadre de l’aménagement global de la parcelle William Pitters, les bâtiments faisant face à la voie LGV prennent le rôle d’écran acoustique absorbant.
Le soubassement : composé par des tubes en aluminium aspect doré en claire voie permet d’assurer une transparence à l’eau pour répondre aux contraintes hydrauliques et à l’air pour assurer la ventilation du parc de stationnement tout en empêchant l’intrusion. Les entrées des halls des bâtiments sont matérialisées par des parements de couleur gris anthracite.
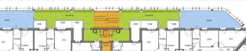
Les coursives : développées sur la longueur du bâtiment sont décomposées en plusieurs sous espaces:
- Les circulations verticales, composées de deux escaliers, elles permettent de limité la circulation devant les logements en limitant la desserte à trois logements par escalier.
- Les dessertes horizontales des logements marquées par un linéaire de bacs à plantes assurent une transition du végétal en verticale « les jardins suspendus ».
- Les « serres », un espace intime attribué aux logements en extrémité de chaque coursive.
La façade du corps du bâtiment : prise entre le soubassement et les attiques elle se présente de manière contrastée par rapport à ces deux derniers et se dessine par des bandes horizontales dimensionnées en harmonie avec l’échelle du volume global et équilibrée esthétiquement par des éléments verticaux « les lames ». Celles-ci sont disposées de manière arbitraire judicieusement placées pour participer à l’absorption des bruits, à encadrer l’espace entre les logements et l’extérieur. Elles forment le rythme vibratile de la façade.
Lots D-C2A / Quartier des Berges de Lissandre, Lormont, 2023
- PROGRAMME_86 logements, une Loge gardien,un parc de stationnement de 77 places en Rez-de-chaussée et 24 places en extérieur
- CONTEXTE_Lormont (33) - Quartier des Berges de Lissandre
- SURFACE_6 394 m² SDP
- COûTS DES TRAVAUX_10,9 M€ HT
- MAîTRISE D’OUVRAGE_CLAIRSIENNE
- MAîTRISE D’ŒUVRE_AAUPC CHAVANNES & ASSOCIES – Architecte Mandataire / BETRI – BET Structure / BETREC ig - BET Thermique et Fluides / ICTEC - BET Economiste / Cabinet Jean-Paul Lamoureux - BET Acoustique
- TYPE DE MISSION_Maîtrise d’Oeuvre complète, Loi MOP, Architecture et Paysage.
- PHASE_Projet en cours_Phase DET
- DATE_2019 à 2023
- LABEL_Qualitel NF Habitat_HQE_Chantier Propre_Faibles nuisances
