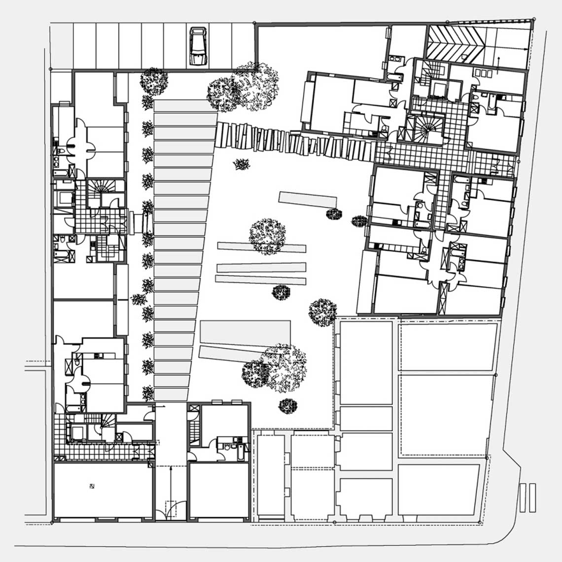
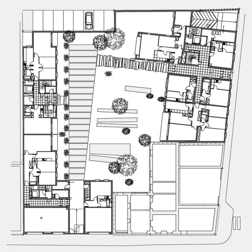
Situé sur le quai d’Ille et Rance, ce projet se situe près de la place de Bretagne, en connexion avec le centre ville. Au rez-de-chaussée et ses trois étages courants s’ajoute un attique en retrait. Il réduit l’échelle du projet, lui conférant une échelle humaine. A cela s’ajoute le traitement de la façade avec ses bandeaux horizontaux. Terrasses, loggias et baies toute hauteur apportent un confort d’usage et de lumière.
Immeuble de 60 Logements, Rennes, 2002

- PROGRAMME_Construction de 60 logements et 80 places de parking
- CONTEXTE_Quai d’ille et rance 35000 rennes
- COUTS DES TRAVAUX_3 M€ TTC
- MAITRE D’OUVRAGE_Groupe ARC promotion 2
- MAITRE D’OEUVRE_Agence Patrick Chavannes / Bet - icofluides
- MISSION_Maîtrise d’oeuvre complète
- PHASE_Réception nov 2002
- DATE_1998 à 2002