Le parc de stationnement est situé sur deux niveaux de sous-sol. Le premier niveau est destiné à un usage public, il accueillera notamment les emplacements des clients et personnels du centre commercial, ainsi que d’autres utilisateurs.
Le second est à usage privé, il est destiné à accueillir les habitants des logements du projet, les utilisateurs du bâtiment de bureau du projet, pour une part, et pour une autre part des places qui seront attribuées aux opérations voisines du quartier.
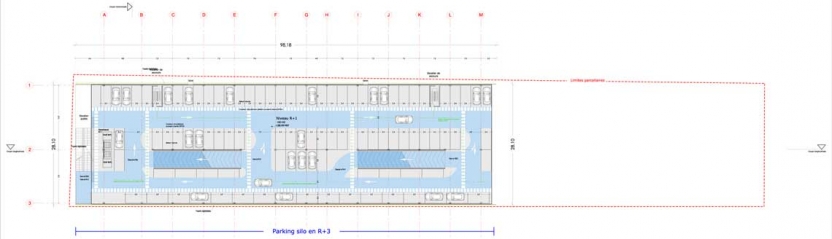
ZAC Dieppe Sud / Parking Silo, Dieppe, 2012
- PROGRAMME_Parc de stationnement de 460 places
- CONTEXTE_ZAC Dieppe Sud (76)
- SURFACE_12 400 m² SHOB
- MAîTRISE D’OUVRAGE_EFFIA
- MAîTRISE D’OEUVRE_Agence Patrick Chavannes – AAUPC
- MISSION_Maîtrise d’œuvre complète, architecture et paysage
- PC
