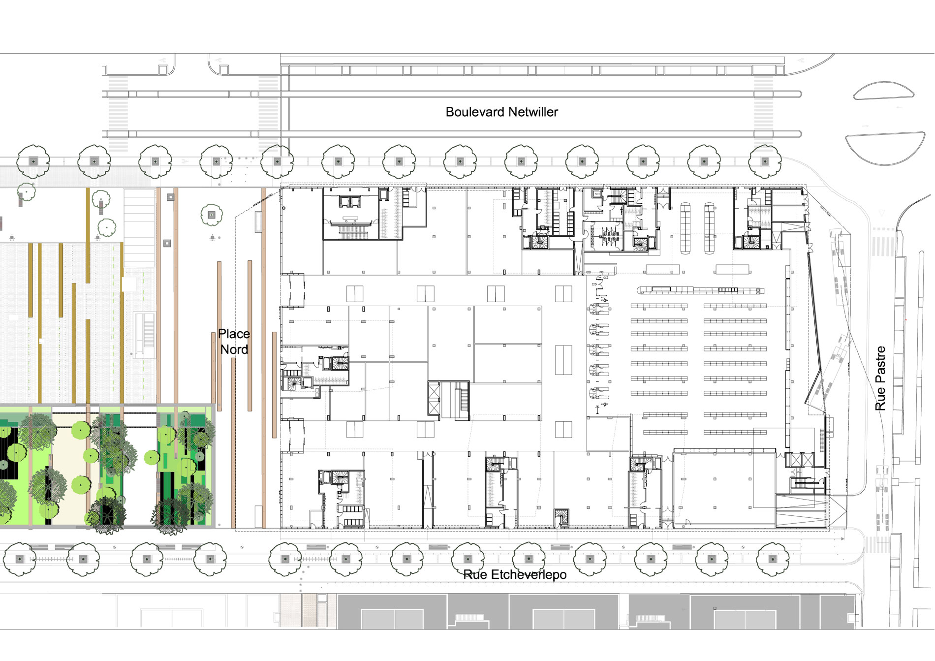
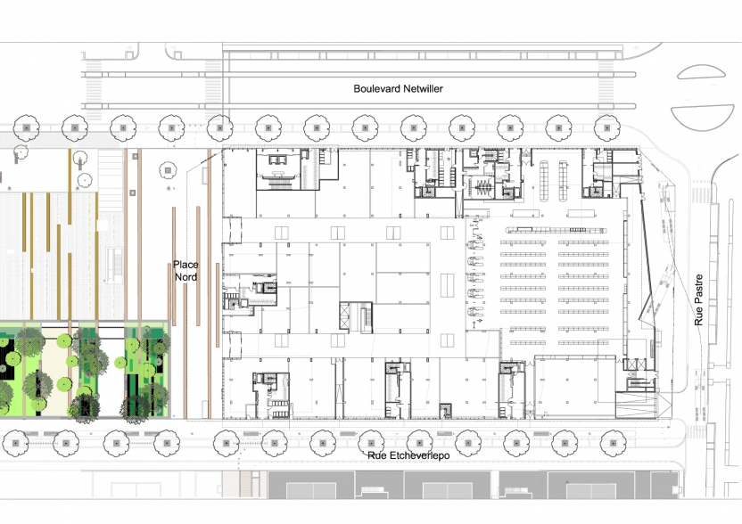
Ilot majeur du futur quartier toulousain Borderouge, l’îlot 1.1, s’étend sur une parcelle de 110 x 73m en prolongement direct de la « Place Nord ». Cette opération organise la nouvelle centralité du quartier et propose une mixité fonctionnelle horizontale et verticale. Le programme se fonde sur un socle commercial, au-dessus duquel se développent 208 logements répartis en 5 plots et une petite tour de bureaux.
Le socle commercial constitue l’assise du projet. Il regroupe une trentaine d’espaces de vente ainsi qu’une moyenne surface (Carrefour Market), articulés autour d’une galerie marchande. Il accueille les halls d’entrée des ensembles de logements, les accès au parking public et privé, des locaux et services municipaux. Il permet de gérer rampes et espaces de livraison en dehors de l’espace public.
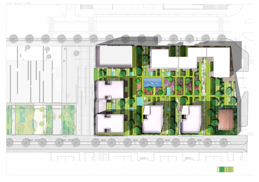
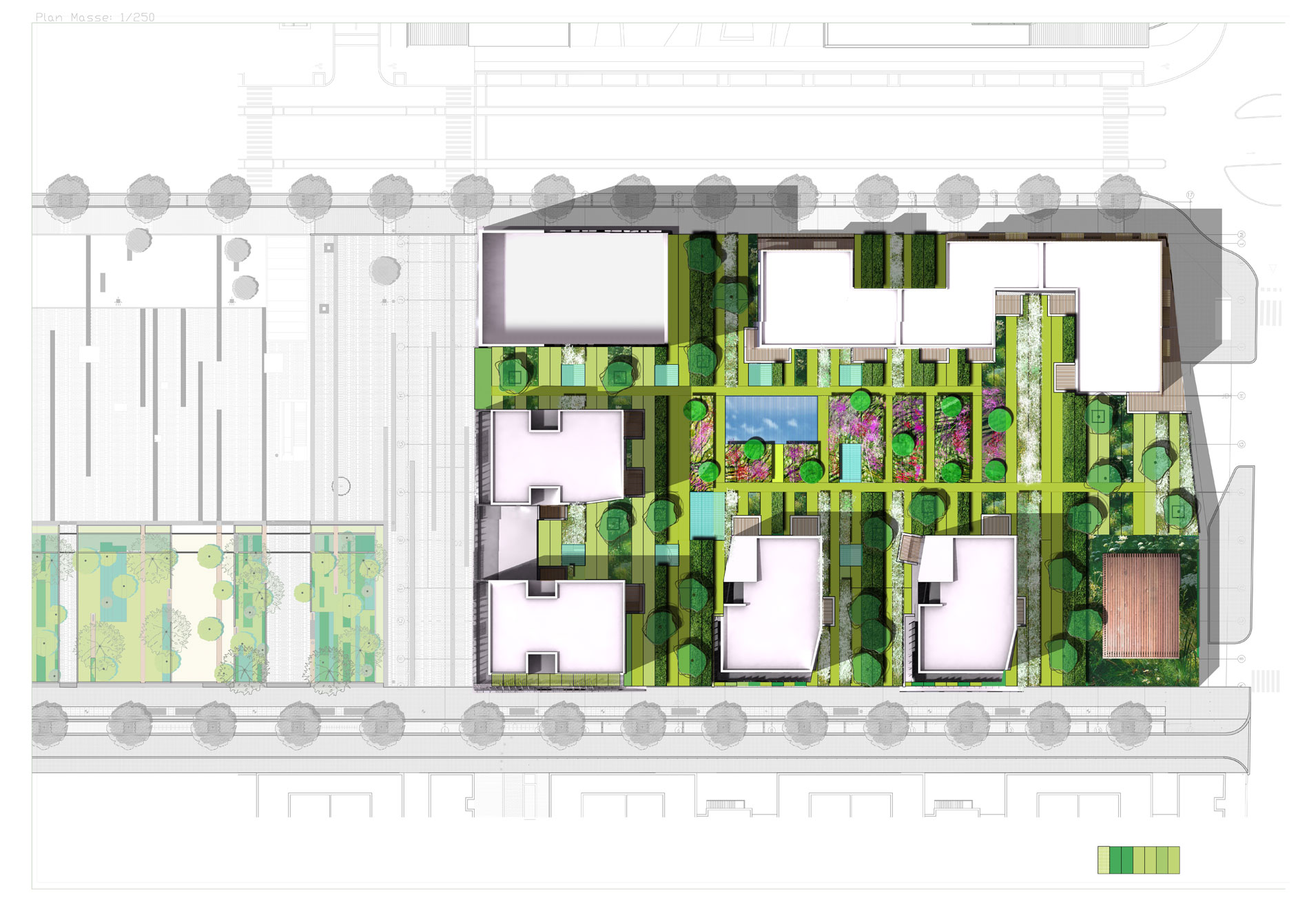
Le socle engendre l’architecture de la tour de bureaux. Un langage architectural cinétique alterne parois de verre, filtres, opacité et transparence. Les immeubles de logements apportent matières et épaisseur à l’architecture d’ensemble : se décline ainsi, toute une série d’espaces extérieurs tels que patios, balcons, loggias, terrasses, jardins d’hiver, jardins suspendus... offrant autant de qualités d’usage aux résidents. Chaque logement bénéficie d’au moins un espace extérieur privatif. Tel un deuxième sol, le jardin planté qui recouvre le socle dessine un nouveau paysage, irrigué des eaux pluviales de toitures. Arbres de hautes tiges, massifs d’arbustes odoriférants, noues pluviales plantées, petits chemins de parcours du jardinier, le jardin, non accessible, s’explore du regard et accueillera des espèces vivantes différenciées.
L'île O Jardin, Toulouse, 2016
- PROGRAMME_208 logements, locaux d’activités et buraux
- LIEU_Toulouse (31), ZAC Borderouge
- SUPERFICIE_25.000 m² SHON dont 7.500 m² de commerces et 4.600 m² de bureaux
- COûTS DES TRAVAUX_35 M € HT
- MAîTRE D’OUVRAGE_ING BELIN
- MAîTRE D’OEUVRE_AAUPC - Chavannes & Associés / Ingérop BET structure / Ginger-Grontmij BEFS BET TCE / VP Green BET façades / Holysud BET Environnement
- MISSIONS_Maîtrise d’oeuvre complète
- PHASE_Livraison finale des logements 2016
- DATE_2010 à 2016
