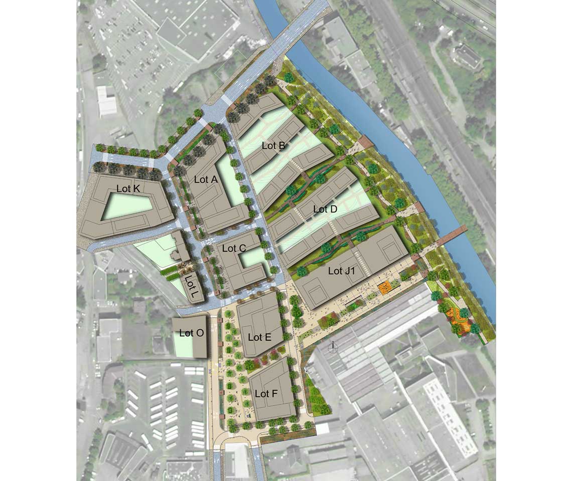
La fermeture en 2006 de l’usine A Vetrotex a libéré un terrain de 5,8 hectares occupant une situation stratégique au centre de l’agglomération Chambérienne, et sur lequel, la Commune a engagé une opération de renouvellement urbain à destination principale d’habitat. L’identité urbaine de ce site permet aujourd’hui de proposer des modes alternatifs, d’habiter autrement le centre-ville, avec la volonté de replacer le site Vetrotex au cœur de la dynamique de Chambéry.
Les ambitions du projet développent plusieurs objectifs qui dépassent les contraintes du site et tirent le meilleur parti de ses atouts : réorganiser l’entrée de Ville, créer un cœur de quartier vivant, inscrire dans une démarche de développement durable, …
Les enjeux liés à l’eau et à la biodiversité sont particulièrement importants au regard de la localisation de la ZAC Vetrotex à proximité de deux cours d’eau (la Leysse et l’Hyères) et des corridors biologiques qui leurs sont associés. Le projet d’aménagement vise à inscrire l’Eau comme un élément majeur du quartier support pour faire « entrer la Nature dans la Ville ».
Le projet d’aménagement intègre la création de deux grandes entités favorables à l’expression de la biodiversité : le parc des Bords de Leysse, qui vient épaissir le cordon rivulaire, et les transversales est-ouest, qui viennent faire pénétrer la nature au sein du tissu urbain.
Le projet propose différents usages et échelles d’espaces publics, adaptés aux différents lieux de vie du quartier. Si la place de Coubertin et le passage du verre textile, sont les espaces fédérateurs, s’affirmant clairement autour d’un vide central, en référence à l’imaginaire de la ville européenne, le projet intègre aussi un parc, des placettes, ou encore des traverses, qui, en intégrant une dominante végétale, font davantage référence au paysage naturel de montagnes et à l’identité de l’agglomération Chambérienne.
Parc de Blainville, Chambéry, 2024
- PROGRAMME_800 logements dont 100 adaptés seniors, 3 000 m2 de commerces et services, et un parc urbain de 1 ha
- CONTEXTE_Requalification des usines Vetrotex A
- SUPERFICIE_8 ha dont 1 ha de parc
- COûTS_13.5 M € HT (espaces publics)
- MAîTRE D’OUVRAGE_Ville de Chambéry / SPL Chambéry 2040
- MAîTRE D’ŒUVRE_AAUPC CHAVANNES & ASSOCIES_Paysagiste / PROFILS ETUDES_BET VRD / CONFLUENCES_hydrologue
- TYPE DE MISSION_Maîtrise d’œuvre des espaces publics
- PHASE_Travaux en cours (début décembre 2019)
- DATE_2017 à 2024
