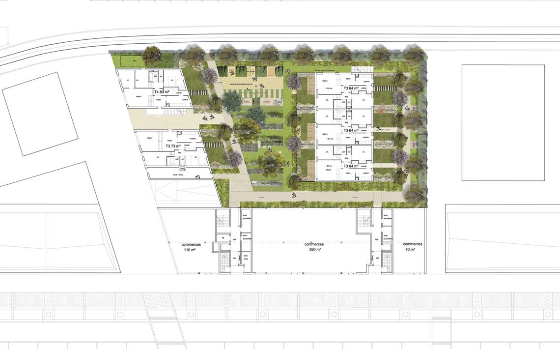
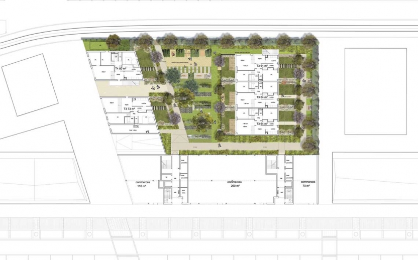
Le projet proposé s’inscrit dans le nouveau contexte urbain du quartier Gare – République, le long de la voie nouvelle Nord qui encadre la future Esplanade. Le lot n°3 est encadré à l’Est par le lot n°2, à l’Ouest par une allée piétonne qui devra un jour rejoindre l’avenue Jean Jaurès. Cette situation de parcelle d’angle donne au projet la double responsabilité architecturale de mettre à la fois en valeur le front de la façade urbaine du grand îlot Nord comme son lot voisin mais aussi d’amorcer la transition des gabarits d’intérieur d’îlot, ici révélés par l’allée piétonne. Notre projet reprend à son compte cette inflexion du front urbain. Cette double thématique trouve son expression dans le plan masse.
Le projet traduit cette situation :
- dans le travail des gabarits latéraux des constructions, qui s’étagent progressivement pour retrouver l’échelle plus domestique d’une maison urbaine en R+2, en fond de parcelle sur l’allée avec un accès propre par un petit passage fermé par une grille ;
- dans la disposition fractionnée des masses bâties le long de l’allée, continuant ainsi l’amorce de changement d’échelle et de registre architectonique prévue au secteur de plan masse.
Le plan masse permet de favoriser les constructions de cœur d’îlot, pour :
- offrir une cour généreuse autorisant un véritable aménagement paysager pour les logements de rez-de-chaussée avec jardins privatifs et une cour commune arborée, comportant ce double registre du végétal et du minéral pour la vie collective de l’îlot.
- Offrir des vues aux logements du bâtiment principal de R+5 sur l’aménagement de la future coulée verte devant accueillir le passage à terme d’un transport en site propre desservant la gare et la vieille ville de Saint-Malo.
Ilot 3, Saint-Malo, 2005
- PROGRAMME_Construction de 40 logements collectifs, commerces et parking
- CONTEXTE_Saint-Malo Gare-République
- MAITRE D’OEUVRE_Agence Patrick Chavannes
- PHASE_Concours sans suite
