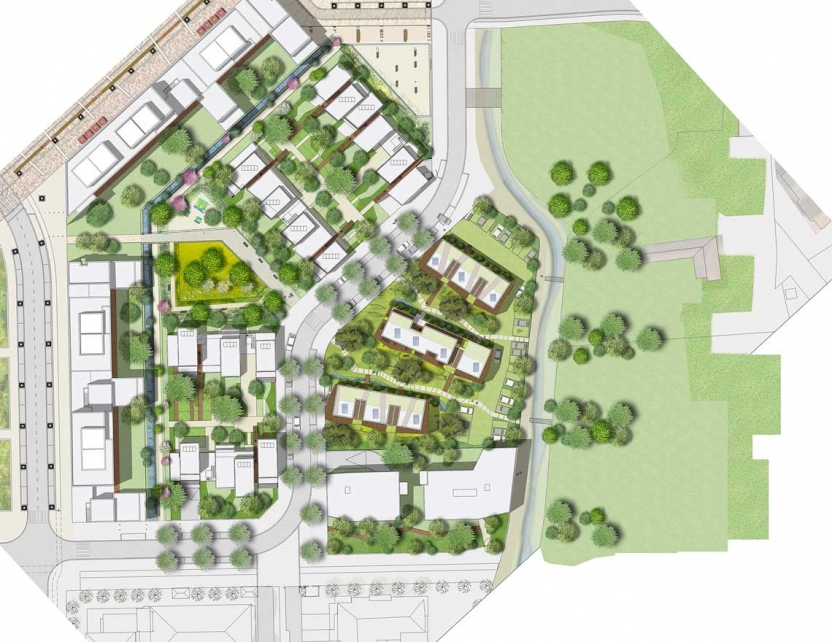
Cette opération s'inscrit dans un nouveau quartier fédéré autour de la Place Nord, terminus du métro et espace public majeur du quartier accueillant commerces, services, cinémas, salle des musiques actuelles. La ville de Toulouse attend un quartier novateur, à la fois attractif dynamique, agréable à vivre et exemplaire en terme de développement durable.
La relation entre espaces construits et espaces végétalisés doit servir cette intention.
Inscrivant notre projet dans cette continuité, nous avons conçu le plan masse dans cette intention urbaine, et proposé une typologie de logements qui soit un mix entre individuel en bande et collectif : de grandes maisons composées d'une dizaine d'habitations chacune, dans un parc, alors que l’îlot se situe entre hyper urbanisé de la Place Nord et le paysage de faubourg encore agricole des bords de la ville.Tous les logements sont conçus avec un objectif de performance énergétique que conforte un parti simple : des façades principales plein sud, de grandes terrasses pourvues de protections solaires, des plantations favorisant un rafraîchissement naturel en utilisant les orientations. La conception d'ensemble autorise également modularité et adaptabilité.
Borderouge / Lot 4.1, Toulouse, 2008
- PROGRAMMES_29 logements intermédiaires répartis dans trois bâtiments
- CONTEXTE_Toulouse_ZAC Borderouge Place Nord_ilot 4.1
- SURFACE_2337 m2 SHON
- COUTS DES TRAVAUX_2 899 761 €
- MAITRISE D'OUVRAGE_SETOMIP
- MAITRISE D'OEUVRE_Cari/Entreprise mandataire_Agence Patrick Chavannes/ architecte et paysagiste_Iosis/bet HQE
- PHASE_concours
