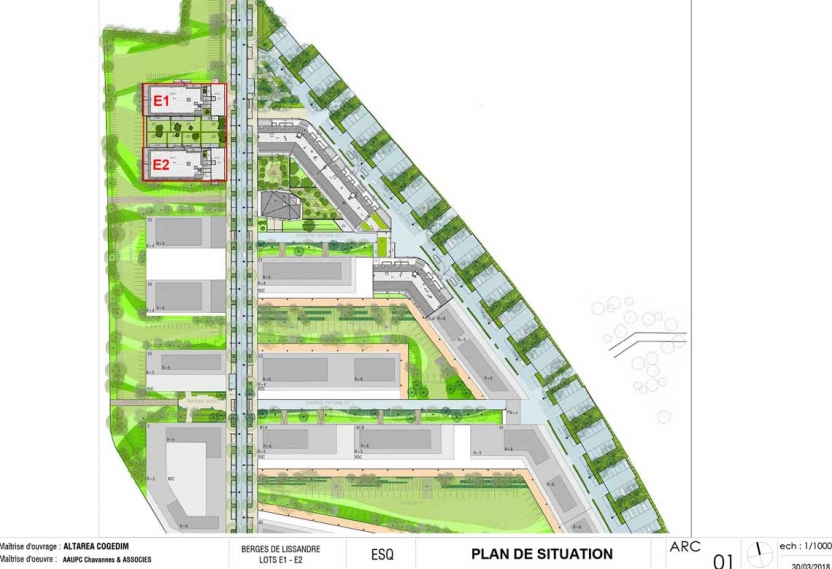
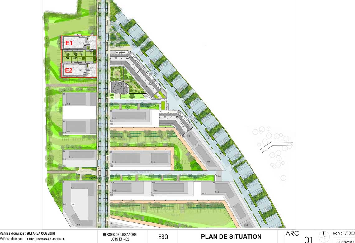
Un principe d’implantation en peigne, le long de la voie Nord-Sud du futur quartier, permet aux bâtiments E1 et E2 de bénéficier de perméabilités visuelles vers l’ouest et d’une vue sur la Garonne.
Une décomposition volumétrique de ces bâtiments en 2 volumes distincts rend possible un double traitement ; une façade urbaine le long de la voie de desserte principale et une ambiance plus résidentielle au niveau des berges en écho.
Cette décomposition se décline par un traitement différencié, assurant une identité architecturale à chaque lot tout en garantissant une homogénéité à travers le traitement des matériaux.
Lots E1 et E2 / Berges de L'Ermitage, Lormont, 2019-2022
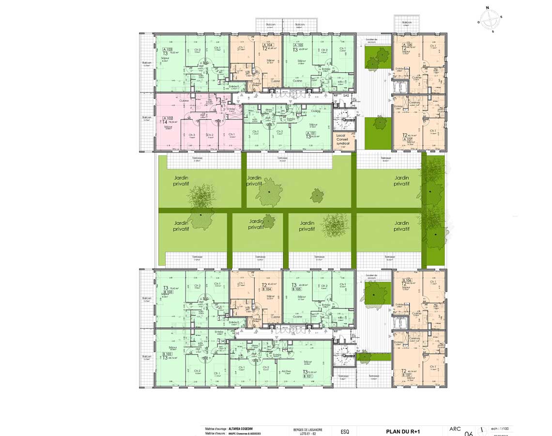
- PROGRAMME_60 logements et un parc de stationnement de 62 places en RDC et 12 places en extérieur
- CONTEXTE_Lormont (33)_Parcelle William Pitters
- SURFACE_4.032 m² SDP
- COûT DES TRAVAUX_6 M € HT
- MAîTRISE D’OUVRAGE_ALTAREA COGEDIM_VEFA pour Bailleur social CDC HABITAT
- MAîTRISE D’OEUVRE_AAUPC CHAVANNES & ASSOCIES, Architecture et Paysage
- TYPE DE MISSION_Maîtrise d’Oeuvre complète,Loi MOP,Architecture et Paysage.
- PHASE_Projet livré en Février 2022
- DATE_2019 à 2022
- LABEL_Qualitel NF Habitat_HQE-Chantier Propre
NIVEAU ENERGETIQUE_RT 2012
