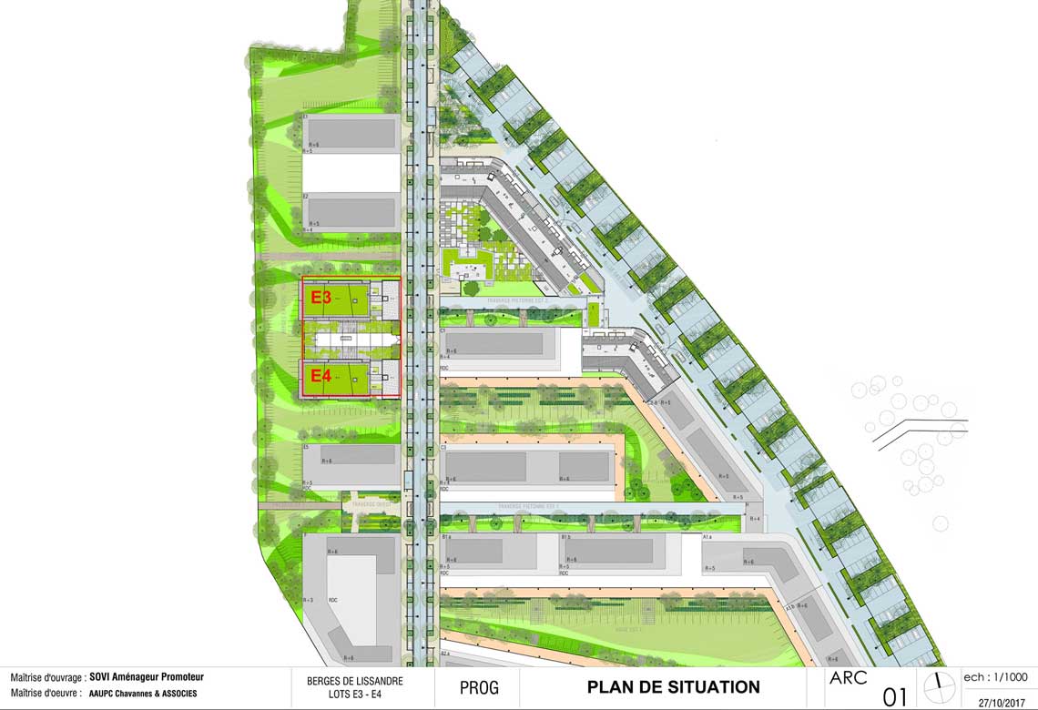
Un principe d’implantation en peigne, le long de la voie Nord-Sud, permet aux bâtiments E3 et E4 de bénéficier de perméabilités visuelles vers l’ouest et d’une vue sur la Garonne. Une décomposition volumétrique en 2 volumes distincts rend possible un double traitement ; une façade urbaine le long de la voie de desserte principale et une ambiance plus résidentielle au niveau des berges en écho. Cette décomposition se décline par un traitement différencié, assurant une identité architecturale à chaque lot tout en garantissant une homogénéité à travers le traitement des matériaux.
Lots E3 et E4 / LYS'A, Lormont, 2018-2021
- PROGRAMME_60 logements et un parc de stationnement de 73 places en RDC et en extérieur
- CONTEXTE_Lormont (33)
- SURFACE_3.870 m² SDP
- Coûts:5 900 000 € HT
- MAîTRISE D’OUVRAGE_SOVI AMENAGEUR PROMOTEUR
- MAîTRISE D’OEUVRE_AAUPC CHAVANNES & ASSOCIES
- TYPE DE MISSION_Maîtrise d’oeuvre complète
- PHASE_Livraison Septembre 2021
- DATE_2018-2021
