Interives, Lot F1b Sud, FLEURY-LES-AUBRAIS (45), 2020


Interives, Lot F1b Sud
PROGRAMME_ IMMEUBLE DE BUREAUX ET COMMERCES
CONTEXTE_Commune de Fleury-Les Aubrais, ZAC INTERIVES 1
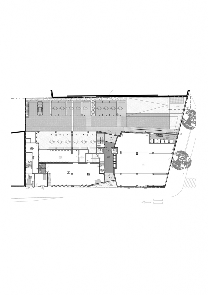
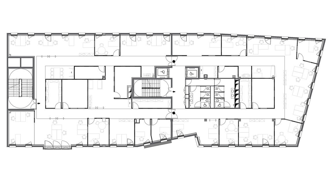
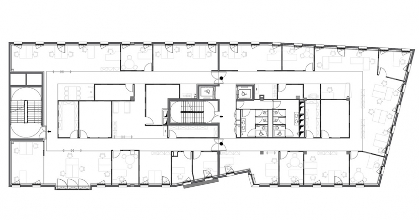
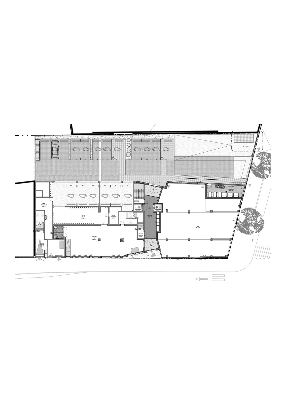
SURFACE_5101 m² SDP, dont 286 m2 de commerces et 4 815 m2 de Bureaux
COUTS DES TRAVAUX_9 490 000 euros H.T
MAITRE D’OUVRAGE_ SCI EXELSIA – 10 rue Ferdinand de Lesseps 76 004 Rouen Cedex
MAITRE D’ŒUVRE_ AAUPC CHAVANNES & ASSOCIES – Architecte Mandataire
TYPE DE MISSION_Mission de maîtrise d’œuvre complète
PHASE_PROJET REALISE
DATE_2019 à 2021
LABEL_BREEAM
ENJEUX_Limite Ouest de la ZAC, le terrain marque l’entrée et à proximité de futures infrastructures publiques majeures

Le marché Orléanais de bureaux manque de petites surfaces. L’objet du présent permis est de construire un bâtiment code du travail dédié à un usage de bureaux de 6 niveaux totalement modulables et adaptables au marché spécifique local. L’ensemble est assis sur un parking privé de deux niveaux enterrés. Le niveau de certification BREEAM, ce qui garantit un grand respect des normes environnementales.

Haut de page Haut de page