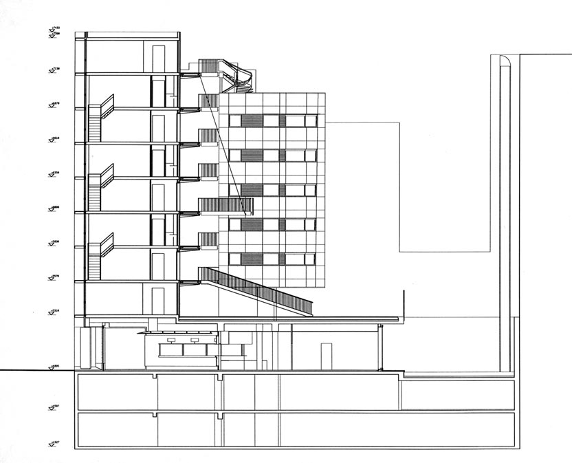
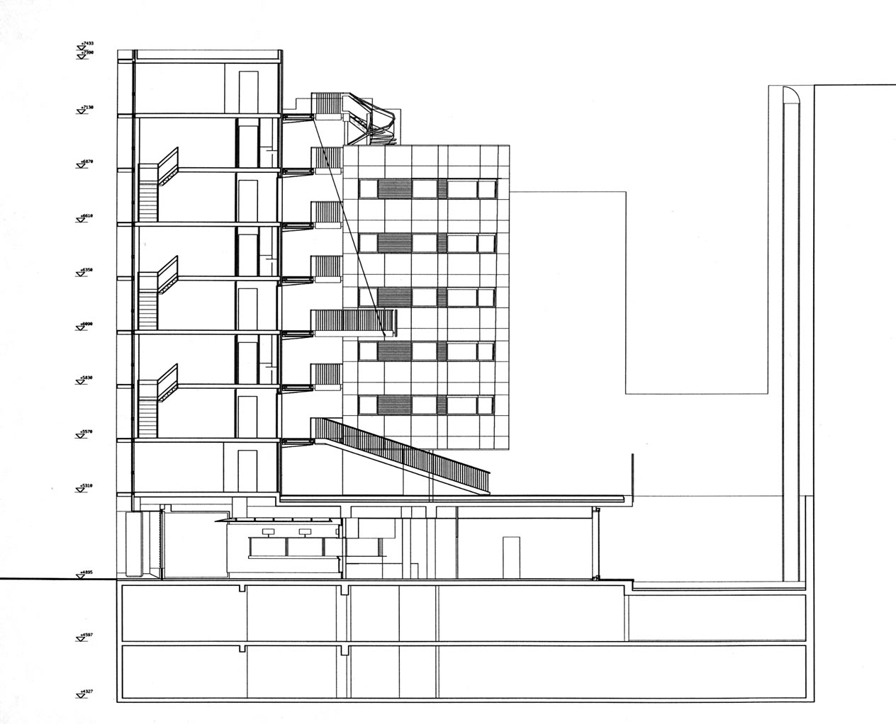
L’immeuble acceuille 30 studios en duplex au-dessus de l’équipement public. la façade sur rue offre une surface lisse et vitrée, décalée par un dispositif de protection solaire qui est également une oeuvre artistique et symbolique : une image retravaillée et pixellisée à partir du motif de la Marianne, qui disparait néanmoins dans les perforations subtiles d’une tôle métallique.La façade sur cour, dans l’ombre, accueille les accès sous forme de colonnes, passerelles et coursives, suspendues au-dessus d’un socle-deck recouvert de bois.L’immeuble fut construit en des délais records, grace à une structure entièrement métallique sur 8 niveaux au-dessus d’un socle en béton.
il s’inscrit dans une série d’opérations pilotes menée par le ministère pour donner aux jeunes fonctionnaires d’alors des logements aidés exemplaires.
Immeuble de 30 logements et une Poste, Paris XIIe, 1983
- ENJEUX_Première réalisation de Patrick Chavannes après avoir été lauréat du PAN en 1982
PROGRAMME_30 logements pour postiers au-dessus d'un bureau de poste - CONTEXTE_Avenue Dausmenil Paris 75012
- MAITRISE D’OUVRAGE_Ministère des PTT_commande publique
- MAITRISE D’OEUVRE_Agence Patrick Chavannes
- MISSION_Maîtrise d’œuvre
- PHASE_Réception 1983
