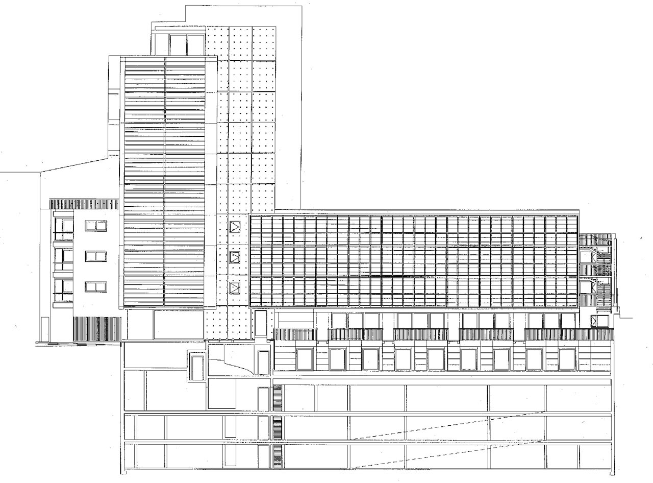
Ce projet s’est réalisé dans un contexte d’opérations pilotes de logements sociaux dans les années 90 à Paris. La parcelle très étroite a dicté un immeuble qui se retourne sur un jardin très en longueur, doté de coursives de desserte détachées de la façade. de grandes loggias se déploient derrière une façade filtre. Des jardins en terrasse prolongent les logements.
Immeuble de 18 logements PLI, Paris XIIIe, 1993
- ENJEUX_Associer urbanité et typologie contemporaine sur une parcelle très contrainte dans un tissu urbain hétéroclite
PROGRAMME_18 logements PLI et 71 places de parking - CONTEXTE_Paris 75013 rue Nordmann
- MAITRISE D’OUVRAGE_RIVP
- MAITRISE D’OEUVRE_Patrick chavannes architecte
- MISSION_Maîtrise d’œuvre
- PHASE_Livraison 1993
