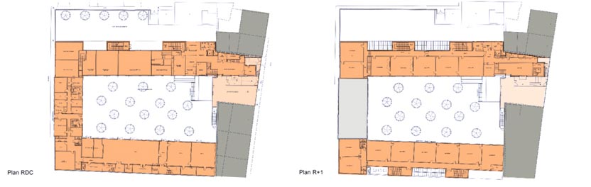
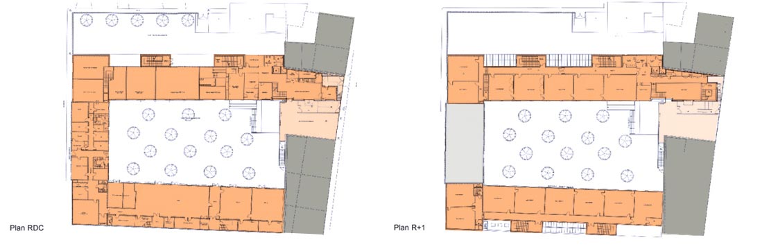
Organisé en U, ce groupe scolaire de l’époque Jules-Ferry devait être agrandi sur rue, entre mitoyens. Cela aurait plongé sa cour dans l’ombre et dissimulé, depuis la rue, la belle robustesse de son architecture de brique et de fer. Nous avons donc préféré prolonger l’un des bras du U et ouvrir la cour sur la ville, par la clôture qui aurait été légère et transparente. Le volume rapporté, qui abrite essentiellement le hall et deux classes, prend des allures puristes dans son bardage de terre cuite, tandis que, plus modeste, le mur-rideau glisse derrière un pan de la façade ancienne pour relativiser le respect porté à l’institution.
École, Paris XVIIIe, 1996
- Programme_Construction d’une école mixte de 9 classes - centre de loisirs
- CONTEXTE_5/7 rue Pierre Budin 75018 paris
- COUTS DES TRAVAUX_16 M € HT
- MAITRE D’OUVRAGE_Ville de Paris
- MAITRE D’OEUVRE_Agence Patrick Chavannes / BET structure - Terrel et Rooke / BET fluides - Estair / Economiste - cabinet Wirtz
- Phase_Réception 1996
- DATE_1995 à 1996
