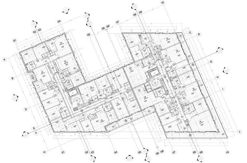
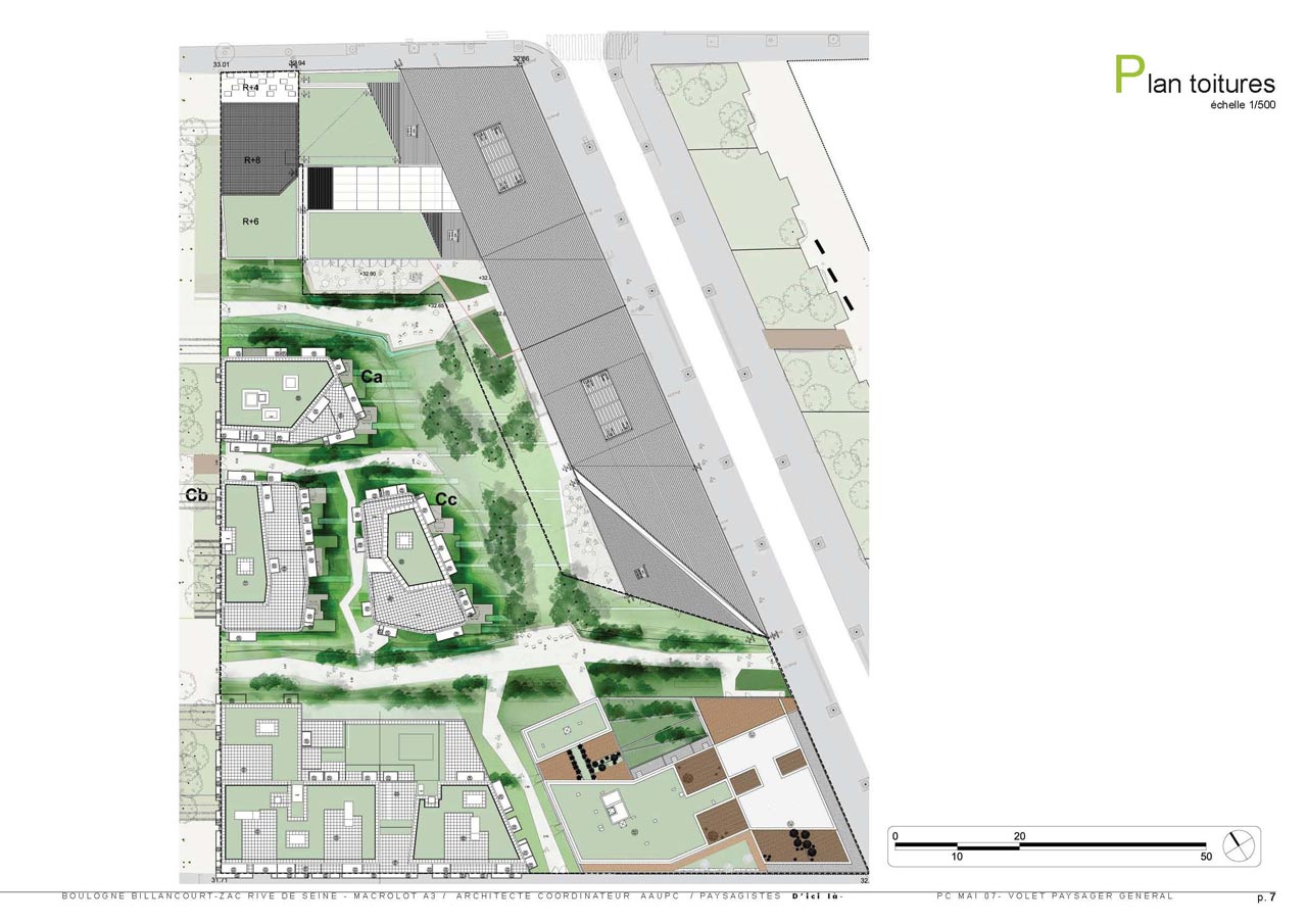
L’agence assure la coordination architecturale, urbaine et paysagère sur le « macrolot A3 » de la ZAC rives de seine à Boulogne Billancourt et réalise un bâtiment de 86 logements sur ce même macrolot. L’une des principales volontés du projet urbain développé par l’agence pour la ZAC était de constituer des îlots perméables que l’on puisse traverser au cours des trajets piétons quotidiens, le cœur d’îlot devenant ainsi un élément supplémentaire pour qualifier de paysage urbain. le programme du macrolot A3 comporte 35000 m² de SHON au total et assure une mixité fonctionnelle que l’on retrouve sur d’autres macrolots : bureaux, commerce, logements sociaux et en accession, résidence pour jeunes travailleurs, ludothèque. Ces projets sont développés par les équipes de maîtrise d’œuvre suivantes : -Résidence travailleurs; Menu & Saison architecte, Lille -Bureaux : MAP Arquitectos, Barcelone -Logements accession : Louis Paillard architecte, Paris -Logements sociaux, en accession et commerces : Patrick Chavannes architecte, Paris -Ludothèque : LAN architectes, Paris -Paysage intérieur d’îlot : D’ici là, paysagistes L’opération de 86 logements sociaux et en accession avec commerces en rez-de-chaussée développée par l’agence Chavannes trouve sa place en pointe du macrolot A3. La volumétrie complexe se développe en rapport à trois échelles : avenue, rue de desserte et cœur d’îlot. L’ensemble des façades est traité en bardage de terre cuite blanche à l’exception d’un volume enduit qui se détache en cœur d’îlot.
ZAC Seguin / Rives de Seine / Ilot A3, Boulogne Billancourt, 2010
- PROGRAMME_Construction de 98 logements neufs, réhabilitation de 4 immeubles et de deux tours d‘habitations, restructuration des espaces publics et privés.
- CONTEXTE_Boulogne Billancourt (92)_zac rives de seine_Trapèze Renault_macro-lot A3
- SUPERFICIE_Logements 6 500 m² SHON - locaux d’activités 500 m² shon parking de 280 places
- COUTS DES TRAVAUX_12 M € HT
- MAITRE D’OUVRAGE_Nexity et Icade
- MAITRE D’ŒUVRE_Agence Patrick Chavannes - architecte / Martin & Guiheneuf - bet bâtiment tce
- MISSION_Maîtrise d’oeuvre complète
- PHASE_Réception en octobre 2010
- CALENDRIER_2007 à Livraison octobre 2010
