Il s’agisait de réussir une architecture évolutive, pouvant être déplacée, temporaire tout en étant pérenne dans le choix des matériaux et du procédé constructif, en capacité d’accueillir les visiteurs tout au long de la construction du quartier pendant plus de dix ans.
ZAC Seguin / Rives de Seine / Pavillon d’Exposition, Boulogne Billancourt, 2007
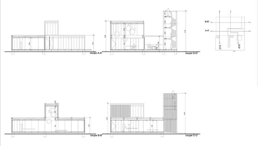
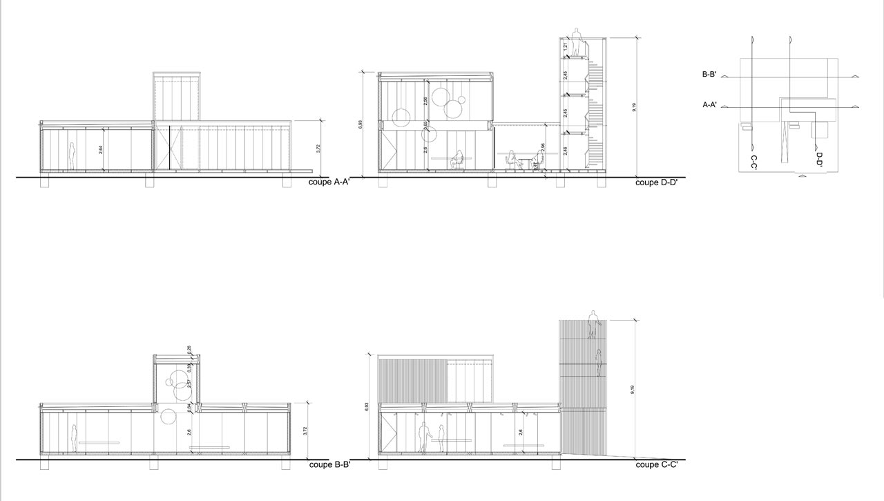
- PROGRAMME_Une surface utile de 150m2, ERP de 200 personnes, recevant également une maison de l’emploi_une tour belvédère indépendante accueille 19 personnes.
- CONTEXTE_Boulogne-Billancourt (92) Trapèze Renault_situation évolutive au gré de l’avancement depuis juillet 2006.
- SURFACE_170 m²
- COUTS DES TRAVAUX_240 000 € TTC
- MAITRISE D’OUVRAGE_SAEM Val de Seine
- MAITRE D’OEUVRE_Agence Patrick Chavannes / BETIBA bet TCE / Agence Rudi Baur - mobilier et signalétique
- MISSION_Maîtrise d’œuvre complète
Pavillon d’exposition : réception juillet 2006
Maison de l’emploi : réception mars 2007 - PHASE_Livraison juillet 2006
- DATE_2005 à 2007
